Branding & Interior Design
Home
Projects
About
Contact
Menu
Close
05
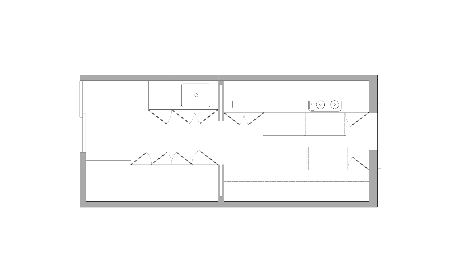
DPTO. TERE & TATO
Services
Diseño de interior Residencial
Intro
Propuesta de diseño de interiores para remodelación de un departamento en Lima, Perú.
Year
2023
No items found.
There's more to see
Other Projects
EL MANATI
Branding
Branding
DPTO. VIA LACTEA
Diseño de interior Residencial
Diseño de interior Residencial